- Programa: Centro de Urgencias y ampliación de Centro de Salud
- Ubicación: Cl. Vicente Blasco Ibáñez, Pilar de la Horadada (Alicante).
- Presupuesto de Ejecución: 1.000.000 €.
- Cliente: Torrevieja Salud U.T.E.
El encargo comprendía en una primera fase la redacción del Proyecto Básico y de Ejecución, así como la redacción del Proyecto de Licencia de Apertura de Actividad del nuevo Centro de Urgencias y la ampliación del actual Centro de Salud de la localidad. La segunda fase consistía en la redacción de un segundo proyecto de ejecución de un centro de día ubicado sobre la fase 1, para lo cual debía realizarse el cálculo y dimensionamiento correspondiente de la estructura portante de la fase 1.

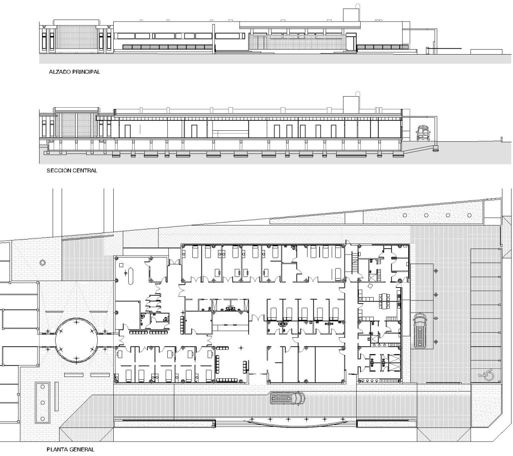
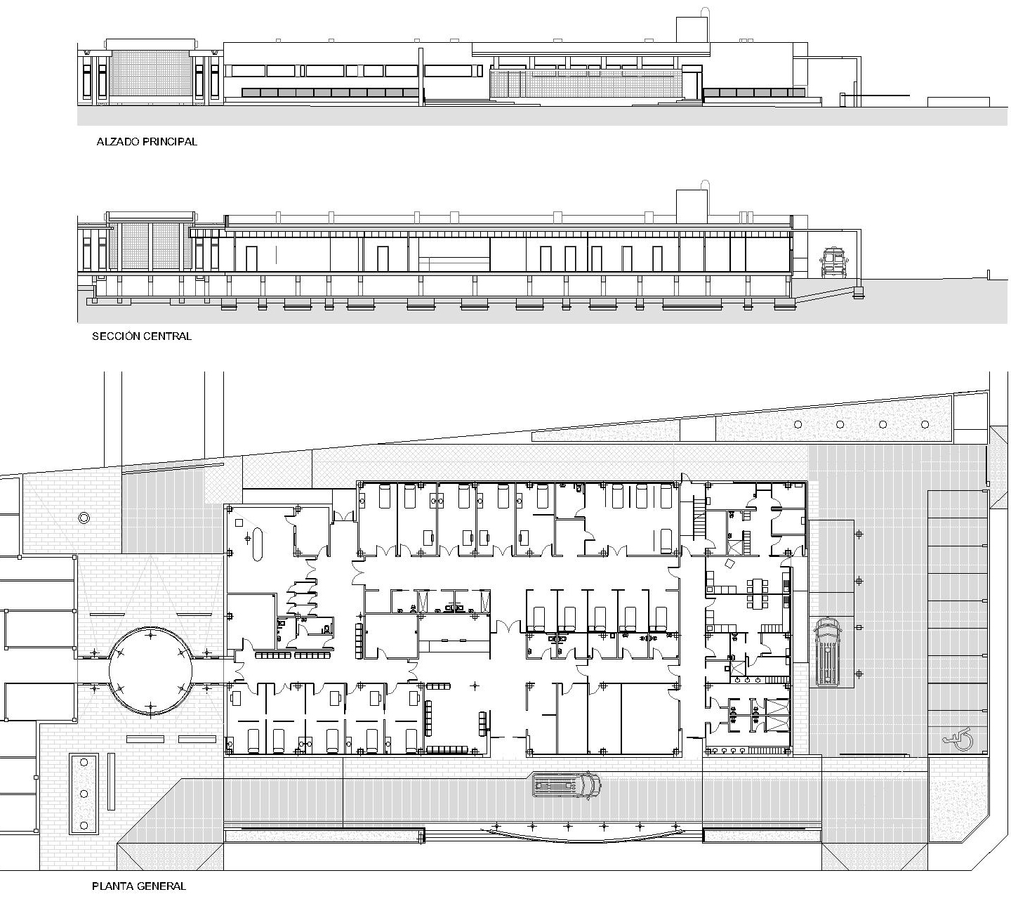
El cumplimiento de los requerimientos técnicos de la normativa autonómica para este tipo de edificaciones sanitarias, así como el programa pormenorizado de usos del proyecto exigía la creación de un único volumen contenedor de las diferentes unidades asistenciales. Con el objetivo de mejorar la conexión con el edificio existente, se crea un vestíbulo circular resuelto con bloques de pavés, que aporta identidad a la fachada del edificio, junto con el paramento vertical que oculta la llegada de ambulancias en la misma fachada. Estos dos elementos configuran estéticamente el edificio, quedando el resto de la fachada del edificio revestido con paneles ligeros tipo ULMA.
Las circulaciones están diseñadas para que se de prioridad a los accesos de urgencias por tráfico rodado, habilitando una rampa que desemboca en la cota de la planta general.



Programáticamente, el edificio está compuesto por 3 unidades. La de urgencias compuesta por 5 boxes, salas de curas, yesos y paradas y una sala de observación con capacidad para 4 camas. Como zona de ampliación, se incorporan 4 consultas médicas y una de enfermería, unidas con el vestíbulo circular de conexión. El área de personal de ambulancias comprende diversas salas de estar y dormitorios para el personal, además de un aparcamiento exterior con capacidad para dos ambulancias, 8 plazas de vehículos y una de minusválidos.
