Proyecto de Clínica de Fisioterapia
- Programa: 3 Cabinas de Tratamiento de Fisioterapia, 2 consultas y Sala de Pilates.
- Ubicación: Plaza de la Once Casas, Valladolid.
- Presupuesto de Ejecución: 40.000 – 50.000 €.
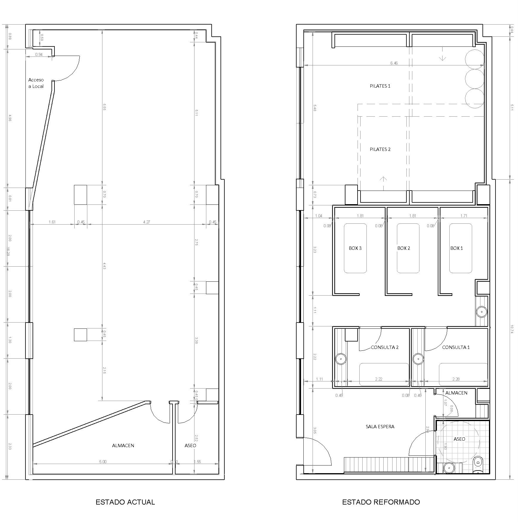
Estado anterior (hacer click en la imagen):
Inicialmente el local era prácticamente diáfano y contaba con acceso directo desde los soportales de la plaza mediante una puerta en su esquina izquierda. La fachada del local iba a ser un condicionante del proyecto desde el inicio, dada la obligatoriedad de mantener su configuración. La estructura del edificio, a partir de pórticos de hormigón armado, modula el espacio interior. La bajante, al estar ubicada en la esquina interior derecha, obliga a situar cerca de esta zona las zonas húmedas de la clínica.
Estado reformado:
Con el programa y el presupuesto mencionado se decide apostar por un espacio diáfano en el que, por medio de tabiques de 2,30 m de altura que no llegan a alcanzar la altura total del edificio se distribuyen los diferentes espacios. Esta decisión permite flexibilizar y economizar el diseño al no depender de la modulación de la fachada, permitiendo el paso de la luz natural hasta el fondo del local. Al tener que situar un aseo adaptado a personas con movilidad reducida en la esquina interior derecha, la entrada al local se realiza desde esta zona, destinando el vestíbulo en esquina a sala de espera.
Aprovechando la modulación de la estructura se única en el centro del local la zona de tratamiento: dos consultas y tres cabinas de tratamiento de fisioterapia. Por último, se destina una gran zona en el lateral izquierdo para las sesiones de Pilates, permitiendo organizar el espacio en función del número de grupos mediante estanterías móviles que dividen en dos la sala.
El aspecto visual sería el siguiente (se desplaza la fachada principal para visualizar mejor el interior del modelo 3D):
Las consultas y boxes se realizan con perfilería ligera con tableros VL de madera maciza de dos capas. Del mismo modo se ejecuta el mobiliario auxiliar (banco sala de espera, encimeras y estanterías). Para aumentar el contraste de la tonalidad cálida de la madera, el resto de paramentos verticales se finalizan con pintura negra, (al igual que las instalaciones vistas). El solado se realiza con pavimento tipo Epoxy


